DEFRO
DEFRO Riva ME BP G Short 19kW
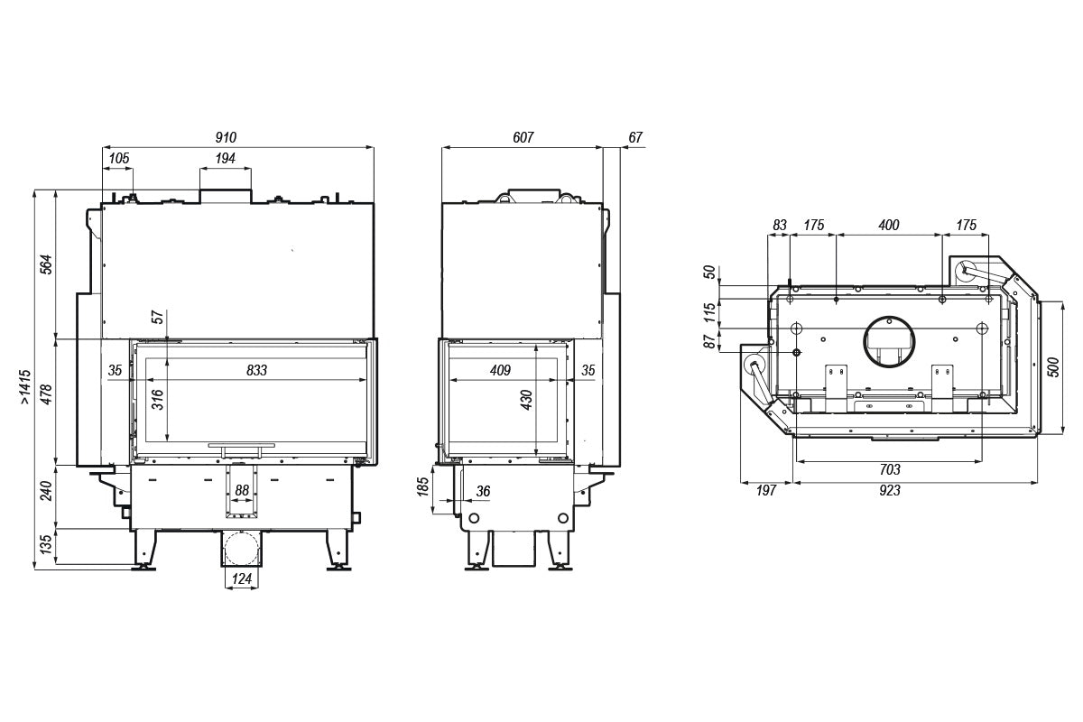
DEFRO Riva ME BP G Short 19kW
Nie można załadować gotowości do odbioru
Realizacja zamówienia:
4 dni robocze. Zapytaj o produkt.
Koszt wysyłki: Wysyłka gratis!
Seria wkładów wodnych RIVA jest przystosowana do intensywnego palenia. Zastosowana w nich technologia płaszcza wodnego, wykorzystuje ciepło, które daje nam kominek, podgrzewając wodę i przekierowując je na użytek centralnego ogrzewania.
Z racji sezonowości okresu wykorzystywania kominka, wkłady wodne z serii Riva współpracują z innym źródłami ciepła, jak: kotły, piece, bojlery, systemy solarne, pompy ciepła, itp. Dlatego też serie Riva z płaszczem wodnym tworzą wkłady ekonomiczne i ekologiczne o wysokiej sprawności. Konstrukcja wkładu oparta na zespole wodnym jedynie w górnej części wkładu gwarantujący doskonały komfort palenia.
Moc nominalna: 19 kW
Moc cieplna obiegu wodnego: 9 kW
Średnica czopucha: 200 mm
Maksymalne ciśnienie robocze: 2,0 bar
Sprawność: ~81%
Ciąg kominowy: 12±2 Pa
Emisja CO przy 13% O2: 0,07%
Temperatura spalin: 274°C
Powierzchnia grzewcza: 80-270 m2
Maksymalna długość polan: 700 mm
Średnica dolotu powietrza: 125 mm
Waga: ~354 kg
DANE TECHNICZNE
-
Wkład kominkowy: Wkład z płaszczem wodnym
-
Konstrukcja: Stalowa
-
Kształt szyby: Szyba narożna prawa
-
Otwieranie drzwi: Do góry (gilotyna)
-
Moc nominalna (kW): 19 kW
-
Szerokość fasady (cm): 80 - 90 cm
-
Sprawność cieplna (%): 81 %
-
Spełnia kryteria EKOPROJEKTU: Tak
-
Przeznaczony do rekuperacji: Tak
-
Rodzaj paliwa: Drewno
-
Dolot powietrza: Tak
-
Popielnik: Tak
-
Średnica wylotu spalin (mm): Fi 200
-
Szyba z DECOREM: Tak










Kominki z płaszczem wodnym
Kominki z płaszczem wodnympełnią funkcję estetyczną. Wykorzystywane są także jako dodatkowe źródło ciepła. Od tradycyjnych kominków różnią się przede wszystkim konstrukcją – opiera się o ścianki, pomiędzy którymi przepływa woda. Dodatkowo, całość jest osłonięta płaszczem wodnym. Taka budowa pozwala efektywnie wykorzystywać ciepło powstające w trakcie spalania drewna do ogrzewania pomieszczeń.Kominek z płaszczem wodnymmożna połączyć z instalacją grzewczą, dzięki której ciepło jest rozprowadzane po wszystkich pomieszczeniach.
-
Zasada działania
W przeciwieństwie do klasycznych kominków, modele z płaszczem wodnym pozwalają na odzyskiwanie i wykorzystywanie ciepła wytwarzanego w komorze spalania. W korpusie pieca znajdują się dwie ścianki, przez które przepływa i jednocześnie nagrzewa się woda. Takie rozwiązanie sprawia, że ciepło wraz z dymem nie ucieka do komina, jak w przypadku klasycznych kominków. Gdy kominek z płaszczem wodnym jest podłączony do instalacji grzewczej, można z powodzeniem ogrzewać pomieszczenie.
-
Najważniejsze zalety
Kluczową korzyścią wynikającą z posiadania kominków wyposażonych we wkład z płaszczem wodnym jest redukcja kosztów związanych z ogrzewaniem domu. Ponadto obecność kominka wprowadza niepowtarzalną atmosferę relaksu, harmonii i odprężenia. Kominki z płaszczem wodnym zostały zaprojektowane z myślą o ergonomii, funkcjonalności i łatwym użytkowaniu. W praktyce oznacza to szybkie, bezproblemowe czyszczenie. Dotyczy to zarówno szyby, jak i wnętrza.