ROMOTOP
ROMOTOP Cara CS N 03
ROMOTOP Cara CS N 03
Nie można załadować gotowości do odbioru
Realizacja zamówienia: 6 miesięcy
CARA CS N 03 płyta stalowa - designerski kominek akumulacyjny
Designerskie akumulacyjne kominki Romotop CARA są reakcją na aktualne trendy i potrzeby nowoczesnej architektury wnętrz. Delikatnie wyważone proporcje zewnętrzne, czyste linie i dominujące wielkoformatowe przeszklenia trójstronne tworzą imponującą całość, która przyciąga najbardziej wymagających klientów.
• Lekki ruch podnoszonych drzwiczek z systemem Silent lift
• Tylna osłona płaszcza pozwala postawić designerski kominek przy samej ścianie
• Posiada system CDP – centralne doprowadzenie powietrza zewnętrznego
• Innowacyjny system odprowadzania spalin DOUBLE SPIN zwiększa skuteczność pieca.
• Dzięki dopływowi powietrza wtórnego, które opływa szybę drzwiczek, nie dochodzi do osadzania zabrudzeń
• Komora spalania wyłożona cegłą szamotową, a w standardzie jest bezrusztowe palenisko
• Do pieca doprowadzane jest powietrze tercjalne
• Regulacja dopływu powietrza pierwotnego i wtórnego za pomocą jednego elementu sterującego
• Standardowo możliwe jest podłączenie górnego lub tylnego odprowadzenia spalin
-
Piec wolnostojący: Piec powietrzny
-
Konstrukcja: Stalowa
-
Kształt szyby: Trzy szyby
-
Otwieranie drzwi: Do góry (gilotyna)
-
Moc nominalna (kW): 6 kW
-
Sprawność cieplna (%): 82,1 %
-
Spełnia kryteria EKOPROJEKTU: Tak
-
Rodzaj paliwa: Drewno
-
Dolot powietrza: Tak
-
Popielnik: Nie
-
Średnica wylotu spalin (mm): Fi 150
-
Szyba z DECOREM: Tak
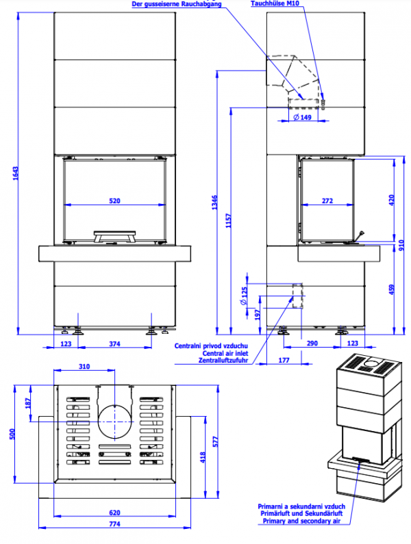
Wysokość | 1643 mm |
---|---|
Szerokość | 774 mm |
Głębokość | 577 mm |
Waga | 238 kg |
Moc regulowana | 2.9-7.4 kW |
Średnica wylotu spalin | 150 mm |
Średnica wylotu CDP | 125 mm |
Wysokość osi tylnego wylotu spalin | 1346 mm |
Wymagana siła ciągu | 10 Pa |
Wydajność | 82,1 % |
Spalanie drewna (kg/godz.) | 1,6 kg/h |






Kominki Wolnostojące
Kominki wolnostojące jako wydajne źródło ciepła Piece typu koza kojarzą się z mało estetycznymi urządzeniami, które jeszcze kilka lat temu zajmowały miejsca w garażach czy też budowach. W ostatnim czasie zmieniło się jednak wiele. Dzisiaj, kominki wolnostojące stanowią konkurencję dla popularnych wkładów kominkowych.
-
Jakie korzyści płyną eksploatacji kominków wolnostojących?
Kominki wolnostojące posiadają wiele zalet, które wymiernie wpływają na ich eksploatację. Najważniejszą z nich jest możliwość efektywnego ogrzania domu za pomocą płaszcza wodnego lub systemu dystrybucji gorącego powietrza. Czym jeszcze wyróżniają się kominki wolnostojące? Oto ich cechy, które wpływają na ich wysoką funkcjonalność:
-
- łatwy montaż – jest to jedna z cech, która zdecydowanie odróżnia kominki wolnostojące od wkładów kominkowych. Kominek typu koza potrzebuje jedynie dostępu do przewodu kominowego. Nie jest zabudowywany, co zdecydowanie upraszcza jego montaż.
- kompaktowość – cecha, która wynika bezpośrednio z powyższej. Kominek wolnostojący nie zajmuje dużo miejsca, dlatego łatwo zagospodarować dla niego miejsce.
- efektywność – oprócz płaszcza wodnego i systemu dystrybucji gorącego powietrza, kominek wolnostojący oddaje ciepło całą swoją powierzchnią oraz rurą odprowadzającą spaliny do komina.
- mobilność – w razie potrzeby, kominek wolnostojący można przenieść w dowolne miejsce, co niestety nie jest możliwe w przypadku wkładów kominkowych.